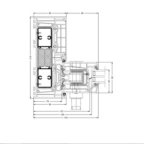
Profilový systém Schüco ThermoSlide je konštrukcia na báze systému Schüco Corona SI 82, kde krídla majú stavebnú hĺbku 82 mm a rám 219mm. Svojimi výbornými tepelnoizolačnými vlastnosťami je tento HS-portál vhodnou voľbou pre nízkoenergetické a energeticky pasívne stavby. Predstavuje ideálnu kombináciu komfortu bývania a úspory energie.

























